目前学界对于琐罗亚斯德教的图像研究,多来自于中亚河中地区公元6世纪以降的壁画和纳骨器材料,以及中古时期中国境内粟特裔相关的丧葬艺术,而对于更早期材料的认识尚有欠缺。近年来,位于古代花剌子模地区(Chorasmia)的中亚阿克查汗卡拉(Akchakhan-kala)遗址陆续发现了一批描绘早期琐罗亚斯德教神祇形象以及宗教仪式场景相关的壁画,年代约为公元前1世纪到公元1世纪,远远早于此前在中亚古代粟特地区以及中国境内发现的相关图像。这为研究琐罗亚斯德教教义和图像在早期的发展与流传提供了新的宝贵证据,同时亦为重新审视以往认识提供了新的角度。
该遗址存续的年代与花剌子模本地接触到希腊化影响的时期基本同步,尤其是壁画创作的年代,基本上是当地手工业和艺术创作在希腊化影响下趋近成熟的时期。通过辨识壁画图像中借用的希腊化元素,本文进一步指出了花剌子模当地工坊生产创作中存在对希腊文化的接收与融合,且这种文化交融很大概率是来自精英和上层阶级的有意选择。若干个世纪之后,得益于粟特裔的逐渐活跃以及丝绸之路的媒介作用,类似的图像底本还流传到了中国。
一 背景介绍
花剌子模地处中亚定居文明的东北角,其发育依托于阿姆河下游的三角洲,北面和西面毗邻咸海和乌斯秋尔特高原(Ustyurt Plateau),东、南两面则分别被克孜勒库姆沙漠(Kyzyl-kum)和卡拉库姆沙漠(Kara-kum)环绕。独特的地理位置和自然环境造就了该地相对独立于其他中亚城邦的历史文化发展脉络。在相当长的一段时间内,花剌子模都保持着相对独立的史前文化面貌,直至公元前6世纪波斯阿契美尼德王朝通过对中亚的征服将其纳入了巴克特里亚(Bactriana)大区名下的行省体系(satrapy)中,其与外界的文化交流才趋于稳定。在不晚于公元前4世纪晚期的某个节点,花剌子模脱离了波斯帝国的直接掌控,成为名义上的独立王国,并在此后中亚大部分地区经历的希腊化进程中保持置身事外。正因如此,花剌子模在古典文献中往往处于边缘模糊化的境地,对其历史文化的探索也主要仰赖于近现代的考古发现。
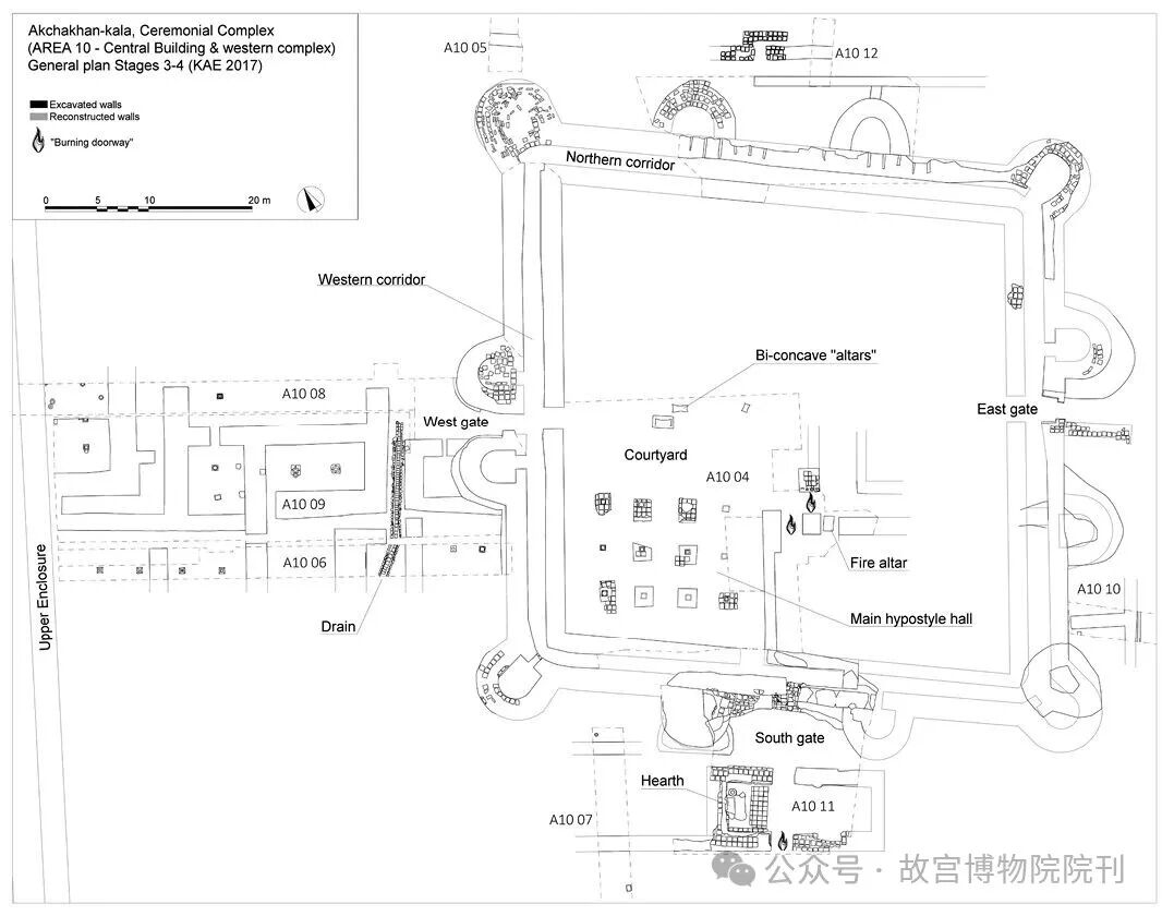
自1995到2022年,卡拉卡尔帕克斯坦-澳大利亚联合考察队(KAE)在阿克查汗卡拉遗址主持发掘工作,在这里考察队发现了一座属于早期花剌子模王室的城址,年代为目前已知最早。位于其附近的王城托普拉克卡拉(Toprak-kala)修建于公元2世纪,为阿克查汗卡拉王城废弃后的另一座主要王城。阿克查汗卡拉遗址位于阿姆河东岸,地属乌兹别克斯坦境内的卡拉卡尔帕克斯坦自治共和国(The Autonomous Republic of Karakalpakstan)。遗址总占地约56公顷,平面呈长方形,主要由内、外两个堡垒式的围城(enclosure)组成。发掘的核心区域主要是内城建筑及其城墙,发现壁画的区域位于内城西北角的礼仪性建筑群。该建筑群共有三个建筑阶段,目前所见的建筑结构在第三阶段才完全形成,包括主要建筑以及回廊的内壁,以及壁画的创作。根据碳十四测年结果,这一阶段始于公元前1世纪到公元1世纪,直到公元2世纪初整个遗址才遭废弃。建筑群的主体部分为一个近四方形的堡垒,边长约60米,四角分别有一座圆形塔楼,四边中央分别有两座对称的圆形塔楼。建筑围墙为双重墙体组成的封闭式走廊,除北侧以外,其余三面正中设有一门供内外通行〔图一〕。考古发掘者在此建筑群中发现了大量用火痕迹和火坛设施,包括南门外设置的火塘以及院内主火坛一侧有大量烧灼痕迹的门洞,门洞的墙体中嵌有三到四个火把或火盆以供奉圣火,类似的遗迹现象还发现于附近一处同时代的火庙祭祀遗址中。此后,在建筑群西南角的多柱式大厅中发现和清理出了一组巨幅人物壁画,将此处的火祭遗存与琐罗亚斯德教的拜火信仰密切联系了起来。

图一 乌兹别克斯坦阿克查汗卡拉遗址礼仪性建筑群平面示意图
这组壁画原出自大厅南壁,目前清理出的图像包括三位巨幅的站立人像,残高约6米〔图二〕。在古代伊朗和中亚艺术中,以夸大式巨幅比例出现的通常是神祇形象。目前在阿克查汗卡拉发现的人像壁画中,只有此处的巨幅人像面部为红色,其余小型人像的脸部皆为白色,或许可将其看作神人画像的区分特征之一。结合每个人物形象细部的不同,大致可以将其比定为三位琐罗亚斯德教神祇的拟人形象。其中,位于观者最左侧的神像保留细节最丰富,基本被认定为戒律与惩戒之神斯劳沙(Sraosha),其另一种身份是与恶魔战斗,护送死者灵魂前往天堂的神灵。另两个神像壁画保存状况较差,葛乐耐(Frantz Grenet)根据中央神祇托举绘有日星图案的青色飘带以及右侧神祇服饰保留的羚羊图案等细节,将二者分别比定为祖先英灵、众灵体的化身弗拉瓦希(Fravashi)以及女神斯彭达·阿尔迈提(Spenta-Armaiti)。下文将主要围绕左侧神人图像中反复出现的几个主题,辨析斯劳沙在早期琐罗亚斯德教语境中的形象与象征。

图二 阿克查汗卡拉遗址大厅南壁壁画复原示意图
二 鸟形祭司图像与斯劳沙的象征
大厅南壁上的三位巨幅神人图像皆有不同程度的损毁,根据修复成果,可以大致复原出左侧神像的主要特征〔图三〕。神像头戴一顶巨大高冠,颈部佩戴宽大颈环,身穿及膝袍服,肩披披风,系腰带,腰带右侧配短剑,下穿长裤,双手及双腿下部残缺。服饰的大部分区域绘有不同主题的图像,辨识其身份的关键在于袍服正中的长条形饰带以及颈环内的饰片。这两个区域的最外侧都以连珠纹分隔,内部以线条框定一系列大小相同的画幅,并分别绘以重复主题的图像。其中最引人注目的是正中央的长条形饰带,自领口处向下延伸,至腿部残缺处止,共框定了18个画框,每一个画框中绘制的都是同一个主题,即一对两两相对的人面鸟身祭司〔图四〕。每一幅中祭司的形象皆有细微差别,但面部皆蓄长须,戴口罩(padam),有的头戴软帽,双手向上持仪式用圣枝巴萨姆枝(Barsoms),这符合琐罗亚斯德教中典型的、主持宗教仪式的祭司形象,以口罩遮住口鼻是为了防止污染圣火。祭司下半为鸟身,尾羽向后翘起,以一对健硕鸟足立于地面。这一对鸟形祭司,在稍晚时代出现在中亚粟特地区及中国境内的粟特裔墓葬图像中,被认为是斯劳沙的助手及典型象征。

图三 大厅南壁壁画左侧神祇复原图

图四 大厅南壁壁画中斯劳沙神像衣饰正中的鸟形祭司图像复原图之一
有关斯劳沙的助手(Sraosha-varez),在琐罗亚斯德教记载法典戒律的典籍《万迪达德》(Vendidad)中有多段描述,指出其可化作一种在黎明时报晓,唤醒人们,驱除邪魔的鸟(公鸡),唤作“Parodarsh”(Farg.XVIII:14-16);同时它还作为执掌惩戒的祭司被最高神阿胡拉·马兹达提及并出现在祭祀仪式中(Farg.V:57-58),与斯劳沙在《耶斯那》(Yasna)中出现的“仪式之主”(the ritual chief/lord)的称谓相呼应(Yasna LVII.2,5,7,9,11)。在琐罗亚斯德教教义中,斯劳沙常常被引申为正义的保护者,又因其不被污染的特质而拥有直面污染,击退恶魔的力量。公鸡作为斯劳沙的助手和象征,在成书于公元9世纪的琐罗亚斯德教创世书《班达希申》(Bundahisn)中被描述为斯劳沙击退恶魔的助力之一。《班达希申》的另一章节中还提到了斯劳沙权柄的延伸,称其为“物质世界的主宰”“人们身体的守护者”,守护死者在过世的三日内免受邪魔困扰,帮助和引导灵魂走上“钦瓦特桥”(Chinvat Bridge)—在那里,逝者灵魂将接受决定其死后去处的终极审判。半人半鸟的祭司图像,很可能是基于“Parodarsh”的鸟身形象,融合了其作为斯劳沙助祭的职能转化而来的艺术创作。现在可以获知的是,这一母题的创作可能要远远早于该图像广为流传的公元6、7世纪。
与伊朗本土琐罗亚斯德教历来所倡导的去偶像化不同,中亚地区素有将神灵拟人化表达的艺术传统,但相关形象的固定及广泛流传大多要晚于公元6世纪。其中,斯劳沙的主要象征之一,即鸟形祭司的形象,更是集中出现在公元6世纪以后粟特人及粟特裔相关的石葬具上。根据中国境内发现的粟特裔墓葬图像,这些鸟形祭司多为两两相对,立于火坛两侧。人面具有明显的高鼻深目特征,卷发,蓄须,并戴有祭司标志性的口罩,通常还系有腰带,手持巴萨姆枝。下半为鸟身,身背羽翼,双爪立于地面〔图五〕。在中国境内的粟特裔墓葬语境中,这一母题还常常与祭品、伎乐、武士、小鬼等元素一同出现,同时上述元素亦常出现在粟特本土的丧葬图像中。关于鸟形祭司形象的来源,除了主流的斯劳沙说,学界还有过“斗战神说”、“千秋、万岁与赫瓦雷纳鸟(Xhvarenah)”、“神赐灵光说”等讨论。而阿克查汗卡拉的这组图像年代要远远早于此前发现的图像,多处细节已初具后世所见鸟形祭司的雏形。该组合中,祭司的部分所戴软帽、口罩、蓄须及主持仪式时手持圣枝,都符合后世琐罗亚斯德教祭司的核心特征;鸟身与鸟足的绘制,与粟特裔墓葬图像中的例子极为近似,可视为这一母题目前已知的最早源头。这一发现明确了“鸟形祭司”的主题源于早期琐罗亚斯德教的语境,且很大概率是由花剌子模画师创作的,在后续的流传过程中,这一母题被不断丰富和重新诠释,又添加了火坛、伎乐、武士等多种元素。

图五 入华粟特裔墓葬中的鸟形祭司形象
1. 西安北周史君墓中的鸟形祭司形象
2. 西安北周安伽墓中的鸟形祭司形象
与人面鸟身祭司伴随出现的,往往是丧葬或死后世界相关的场景,公元6世纪后所见的绝大多数鸟形祭司图像都属于这种情况。在南壁壁画中,另一个反复出现的渡船主题应和了“鸟形祭司”的出现,一同指向了斯劳沙的身份象征,及其在死后世界中守护亡灵渡过“审判”的使命。
三 逝者的“河流”与“渡船”的象征
上述渡船主题出自左侧神祇颈部佩戴的饰带〔图六〕。其内部由红线勾勒的几何形边框分割出了若干个画幅,画幅中绘制出渡船的场景。船体为独木舟式,两侧翘起,船头装饰以兽首形状,船身饰有若干个旋涡形纹饰。根据其中一幅保存较为完整的图像看,船上似乎载有三人,其中一人居中而坐,船头船尾各站一人,似乎为划桨的船夫〔图七〕。

图六 斯劳沙神像颈部饰带复原图

图七 斯劳沙神像颈部饰带中的渡船图像细部
渡船场景出现在此的意义为何?结合其与“鸟形祭司”图像一起被绘制在神像衣饰的正中,以单独的画框圈定并多次重复,可知这两个主题应该是被刻意强调的,是与神祇身份密切相关的象征。上文提到了在琐罗亚斯德教的信仰中存在一个连接死者灵魂和彼岸的钦瓦特桥,灵魂在斯劳沙的护送下走上桥接受审判,而只有符合筛选标准的人才可以通过审判并经由这座桥进入“天堂”,没有通过的则会跌入河流被海兽吞噬。其实这一概念的诞生源于古代印度-伊朗人信仰中分隔死者和死后世界的黑色河流的传说,跨越黑色河流代表着危险,这在阿维斯塔语中被称为“Chinvato Peretu”。在古希腊神话中,同样有这样一条通往死后彼岸的河流,逝者的灵魂浸在水中极易受侵蚀,因此凭自身难以通行。掌管冥河渡船的卡戎(Charon),形象通常为长满胡须的老头,负责将亡灵渡到彼岸,同时亦肩负着筛选和审判的职责。这种信仰发展成一种流行于古希腊和古罗马文化圈的葬俗,即在死者口中或身上放置钱币,象征着用于支付亡灵渡过冥河的船资。
无论在琐罗亚斯德教还是古希腊神话中,渡河概念背后的内核都是如何跨越象征着“危险”和“筛选”的河流到达彼岸,此外涉及的元素还包括载体(钦瓦特桥/渡船)以及执行审判和筛选的角色(密特拉、斯劳沙/卡戎)。两种神话体系中相似的内核,让图像元素的借用具有其合理性,而斯劳沙最重要的象征在图像中亦有显现。在复原的渡船主题画幅的最左侧,清晰可见一只带有细长鸟喙的小鸟,似乎正站立在渡船尾部〔图八〕,应为斯劳沙的助手“Parodarsh”。因此渡船场景展现的是斯劳沙的圣禽护送虔信者亡灵前往彼岸的主题,只不过“最终筛选”的场景由“钦瓦特桥”替换为希腊文化中的“渡船”。无独有偶,在北周史君墓石堂E1壁中,登上钦瓦特桥的骆驼背上也绘制了这样一对小鸟,在同一语境下,基本可以确认其为斯劳沙助手的化身,在行使护送亡灵通过钦瓦特桥的使命〔图九〕。反观大厅南壁壁画中的同一主题,画师在渡船场景中特意加入小鸟站在船尾,就是以此点明壁画的真实意图是表现斯劳沙护送死者亡灵的主题,明确该神祇的身份。画面里的船并非现实中的船,渡过的河流亦非普通的河,而是象征着危险的“冥河”。

图八 斯劳沙神像颈部饰带中图像船尾处的小鸟

图九 西安北周史君墓石堂E1壁钦瓦特桥上骆驼背上的小鸟
在空间与现实的角度,“渡船”图像出现于阿克查汗卡拉或许别有一层写实的意味。想象中的河流分隔了“亡灵”与“天堂”,现实中恰恰也有这样一条河流贯穿花剌子模的“心脏”,而就在这条阿姆河岸边约五百米处,伫立着该地区目前唯一一座已知的“达克玛”(Dakhma)奇尔皮克(Chil'pyk)。达克玛,在后世又被称为“寂静之塔”(the Tower of Silence),是琐罗亚斯德教传统中用于将死者曝尸的特殊丧葬建筑,主要发现于伊朗、中亚地区以及近现代孟买的帕西人(Parsis)社区中。托尔斯托夫(S.P.Tolstov)最早调查了奇尔皮克以及周围的几个石丘,认为它们在史前时代就已作为举行原始丧葬仪式的场所为周围部落所用,而后又在公元1世纪初被改造为符合正统琐罗亚斯德教要求的达克玛。葛乐耐肯定了这一判断,并指出其属于一种更为古老的,借用自然高地建造的达克玛,与后世帕西人所建的有所不同。根据奇尔皮克内部发现的陶片年代,这座达克玛约建于公元1世纪初,与阿克查汗卡拉的第三个使用阶段基本同时,亦即在壁画创造的年代,这座达克玛可能已经存在。相传只有本地区最尊贵的死者才可以享有在这座达克玛安葬的权利,而死者通常由专业的运尸人—一般为两位,将裹着白布的尸体安放在小船上,再通过阿姆河运送到达克玛。想象一下,现实中或许曾有无数次运送尸体的渡船横跨阿姆河,或从上游顺流而下,将尊贵的死者运送到另一侧的达克玛安置,自然不难理解花剌子模画师选择创作这一主题的原因。
纵观公元6世纪以来粟特裔石葬具中关于“筛选”主题的描绘,不难发现对“钦瓦特桥”的强调,这或许源于萨珊波斯以后琐罗亚斯德教典籍和仪式细节的进一步强化与固定,使图像表达亦趋于统一。然而,依然有入华的粟特裔墓葬选用了更加希腊化的渡船图像来表现同一主题,比如天水石马坪石棺床的第十屏所展现的〔图十〕。可知这种嫁接了琐罗亚斯德教教义和希腊元素的渡船母题在中亚从公元前后一直延续至此。这从侧面反映出,即使是在教典相对固定和正统化了的萨珊时代以后,中亚的琐罗亚斯德教徒依然沿袭着当地自古以来文化因素杂糅多样的图像系统。虽然图像创造可能受到一定限制,但依然有部分传统延续了下来,在少数人群里流传并最终带入了中国。

图十 甘肃天水石马坪石棺床背屏第十石
考虑到历史上花剌子模未经历过亚历山大军事征服及殖民的背景,此处壁画中透露出的希腊元素更加引人注目,侧面反映了希腊文化圈在中亚大肆扩张以来对花剌子模的辐射与渗透。根据物质文化、出土遗物的相关证据,花剌子模本地直到公元前3世纪左右才逐渐显露出希腊文化因素的影响,很大程度上晚于中亚其他地区。而阿克查汗卡拉主要礼仪性建筑的成型年代约为希腊文化浸淫中亚多年并根植本土长久发展以后。高品质的希腊文化和物质产品在几百年间逐渐传播到花剌子模,正好满足了当地在脱离波斯统治后新兴的贵族和上流阶层的物质文化需求。在此背景下,有部分当地工坊受到相应启发,或是引进了来自中亚其他地区的画师,将希腊文化中的渡船嫁接到了本地流行的琐罗亚斯德教的相似场景中,从而创造出了这一母题。
在同一建筑区域内发现的部分遗物进一步佐证了希腊文化因素对阿克查汗卡拉的影响。相关遗物包括一个模拟希腊神话中海兽形象的浮雕残片,装饰了莨苕纹的象牙来通残片,以及一个符合希腊化晚期风格的、以森林之神萨蒂尔(Satyr)为原型的泥塑模子。西侧建筑走廊内还发现一处绘制了一串葡萄及其藤蔓下露出四分之三人脸的壁画残片,这种艺术表现方法不见于古代伊朗艺术,而属于一种希腊美术的技法。其中,萨蒂尔常与酒神狄奥尼索斯(Dionysus)崇拜以及饮酒文化的流行相关联,而葡萄藤的图像元素亦和葡萄种植以及饮用葡萄酒直接相关。公元前3世纪以来,随着饮酒文化在花剌子模的流行,与之相关的习俗、神话传说以及艺术象征亦被花剌子模本地工坊及手工匠人吸收,并用于创作新的器型、泥塑形象以及壁画母题中。由此观之,阿克查汗卡拉壁画中对希腊文化元素的嫁接并非偶然,而是反映了这一时期花剌子模上层社会普遍流行的审美取向与潮流风向。
四 余论
阿克查汗卡拉遗址大厅南壁壁画中最显著的特征,是其表现出了一种独特的神人同形图像系统,这在中亚其他地区并无前例,应为本地画师的创作。在粟特地区发现的晚期神祇图像中常见的一些元素,如头光、坐骑以及某些非人特征等在此并无体现,相对的,此处壁画中体现的是一种更高程度神人同形的艺术表达。画像中大部分的衣饰都可以在现实中找到相对应的图像,腰带及下半身装束的样式可以在波斯阿契美尼德王朝的首都波斯波利斯(Persepolis)的石刻中找到大量呼应。此外,阿克查汗卡拉所见的斯劳沙神祇在剑鞘下方残留的裤面上装饰有重复的鸟类图案,这似乎与波斯阿契美尼德时期窖藏“阿姆河宝藏”(Oxus Treasure)中一件金牌饰上刻画之人穿着的裤样基本一致〔图十一〕。从他的服饰细节,如佩戴覆面口罩,手持疑似巴萨姆枝之物等来看,此人很有可能是一位祭司。由此推之,阿克查汗卡拉斯劳沙壁画中裤面的鸟类图案,实际上呼应了斯劳沙为宗教仪式之主的重要身份。很可能,在原始壁画上,每位神祇都绘制了符合其身份特征的不同服饰细节,只可惜由于壁画保存状况的限制,这些细节不存于今。例如,位于中央的神祇冠饰就与左侧不同,其双手向上托举着一根象征着天空的青色飘带,使人联想起圣书《阿维斯塔》中对弗拉瓦希“从下方支撑起天空”(Yast XIII.29)的描述。在琐罗亚斯德教中,弗拉瓦希是众灵体的集合,具有众先祖之英灵,古代英雄战士之灵,以及雅利安人的保护者等诸多象征。如果我们接受中央神祇为弗拉瓦希的解读,那么大厅南壁壁画的主题以及左侧和中央两位神祇的联系都显得昭然若揭。

图十一 “阿姆河宝藏”中发现金牌饰之一
大英博物馆藏
斯劳沙在目前所发现的大部分图像中都与死后世界及丧葬主题紧密联系,南壁壁画中两个点明斯劳沙身份的壁画主题“鸟形祭司”与“渡船”主题更是都与此相关。虽然也有如巴米扬佛像旁所见鸟形祭司,表现的是斯劳沙战斗除魔方面的能力,但在南壁壁画中并无相关特征显现。壁画所在的多柱式大厅以及其所在更大的建筑群与丧葬活动并无关联,相关遗物的发现也佐证了这一点。斯劳沙神像出现在此的真正意义,需从南壁壁画的整体叙事及这座多柱式大厅的功能处着手。如果将绘制在南壁中央的神祇解读为众祖先英灵的代表,那么此地可能存在的祭祀活动,其对象应该是壁画中的主要神祇,亦即花剌子模王室的众先祖。而斯劳沙在此出现并接受供奉,是为了守护王室世代成员在死后世界的安宁,并确保亡灵可以前往天堂。
在花剌子模的神像壁画中,可以明显看到对波斯传统的继承以及对希腊化元素的选择性吸纳,但其艺术创造却又是明显属于本地且服务于本地王权的。部分图像,如“鸟形祭司”的组合具有独特的开创性。与古典文献中来自希腊、罗马人的只言片语,以及波斯人用来点缀在石刻艺术中记述功业的形象不同,阿克查汗卡拉的发现象征着花剌子模人从西方古典时期历史文献中被描述和塑造的“他者”,正式过渡为拥有自我表达和自我创造的文化“主体”。其中的一些图像蓝本,生命力经久不衰,借助琐罗亚斯德教的流行在中亚粟特地区焕发新生,甚至有部分蓝本随着丝绸之路流传到了公元6世纪的中国。