中原地区东周城址考古的初步研究

字号:T|T
2026-01-30 09:15 来源:文物天地月刊
图片

郑韩故城(左)、城阳城(右)平面图


本文所指的中原地区,主要是狭义的中原,即河南省行政区划范围内的广大地区。河南地区发现的东周时期城址有170余座,其中40余座城址进行过发掘或者勘探调查,以往有很多学者开展过相关研究,但是缺乏较为系统的梳理,因此本文对河南地区东周城址的发现情况进行梳理,既是回顾,也是对未来工作的思考。
图片
 
中原地区进行发掘或者勘探调查的东周时期城址共有47座,按照城垣的数量,这些城址可以分为多城垣城址和单重城垣两类。从平面形态上看,东周时期的城址大多呈长方形或近长方形,其中郑韩故城、淇县古城、滑国故城、刘国故城和北舞渡古城5座城址受到地形的影响,平面呈现出不规则形状
按照多城垣城址和单重城垣两类,将这些城址的基本情况分述如下:
一、多城垣城址
图片
 
共11座,可分为三重城垣、两城并列、内外两城3类。
1.三重城垣布局
图片

父城平面图

(图片来源:河南省文物考古研究院《父城勘探报告》)

 
父城:位于平顶山市宝丰县,近些年河南省文物考古研究院对父城遗址进行了考古勘探,经勘探城址呈长方形,分外城、内城和宫城。外城东西长1900米,南北宽1360米,面积约258万平方米,内城位于外城内西北角,面积约71万平方米,宫城位于内城西北角区域的台地上,面积约3.4万平方米。三重城垣结构在东周时期罕见,是否同期建造有待考证。
2.两城并列式布局
图片

郑韩故城平面图

(图片来源:樊温泉:《郑韩故城郑韩故城近年来重要的考古发现与研究》,《华夏考古》,2019年第4期)

 
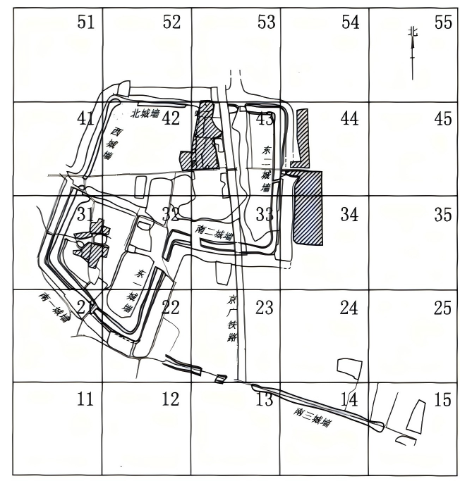
郑韩故城:位于双洎河和黄水河交汇的三角地带,受到地势影响呈现出不规则三角形,城址面积约1600万平方米,故城中间有一南北向隔城墙,将故城分为东西两城,呈并列式布局。
图片

城阳城平面图

(图片来源:贾连敏等:《河南信阳市城阳城址2009—2011年考古工作主要收获》,《华夏考古》,2014年第2期)

 
城阳城:位于信阳市,整体布局为南北两城并列,地势西高东低,平面呈曲尺形,总面积约90万平方米,北城较南城大,城阳城南部发现一条断续的城墙向东延伸,与南城南墙大致在一条直线,该城墙的出现扩大了城阳城的遗址范围,但是否为该城的外城南城墙,有待考证。
3.内外两城布局
图片

东周王城平面图

(图片来源:《洛阳发掘报告》)

 
东周王城:20世纪50年代,起初仅发现外城城墙,1999年和2007年分别发现了宫城北城墙、东城墙和壕沟,基本确定了宫城的范围。东周王城平面呈方形,南北长约3700米,东西宽约2890米,总面积约900万平方米,宫城位于王城西南隅,具体面积不详。
图片

鄢陵故城平面图

(图片来源:《20世纪河南考古发现与研究》,441页)

 
鄢陵故城:鄢陵故城平面呈长方形,分为内外两城,外城面积约176万平方米,内城位于外城的东北角,内城东墙与外城的东墙有一段共用,南北长184米,东西宽148米,面积约2.7万平方米,关于内外两城的性质及关系,需进一步研究。
图片

蔡国故城

(图片来源:刘铮:《蔡国故城研究》,河南大学,2019年)

 
蔡国故城:蔡国故城平面呈现出南北的长方形,城址面积约680万平方米,由内外两城组成,内城位于外城中部偏南,面积约35万平方米。
北山口故城:北山口故城位于固始县城关一带,分为内外两城,外城平面呈长方形,外城面积约1110万平方米,内城位于外城东北角,面积约180万平方米,关于内外两城的性质及关系,需进一步研究。
图片

扶苏城平面图

(图片来源:《20世纪河南考古发现与研究》,441页)

 
扶苏城:扶苏城位于商水县舒庄乡扶苏村,由内外两城组成,外城呈现出凸字形,总面积约35万平方米,内城位于外城中北部,每边长约250米,面积约6.2万平方米。扶苏城的内外城夯土土色一致,夯层厚度与夯窝特点相同,应为同时所筑。
辉县共城:辉县共城分为内外两城,外城平面呈长方形,面积约156万平方米,内城位于外城西南隅,面积约42万平方米。
陈楚故城:陈楚故城位于周口市淮阳县,陈楚故城分内外城,内城城墙周长4.2千米,外城城墙周长约13.3千米。
李家窑古城:李家窑古城位于三门峡市区东南部,发现有内外两重城墙,外城平面呈长方形,面积约59万平方米,内城位于外城西南隅,面积约8.9万平方米,宫城和城垣之间分布着制骨、制陶、冶铜作坊和粮库。
具有多重城垣的城址面积并无特定规律,面积较大的城址,例如郑韩故城,面积达到1600万平方米,面积较小的城址,例如扶苏城,面积仅35万平方米。以社会阶层来区划居住区的“两城制”的城市规划,是东周城市的新特点,存在多重城垣布局的城址中,父城和扶苏城两座城市是当时的地方城邑,其余8座均为列国都城,从现有材料来看,不仅列国都城,还有一些中小城市也存在着两城制的布局特征。
东周王城、郑韩故城、城阳城和辉县共城对城址的始建年代及沿用情况开展过较为详细的考古工作。东周王城城墙约始筑于春秋中期以前,战国时期和秦汉时期进行增筑和修补;郑韩故城城垣始建于春秋早期,春秋时期和战国时期多有修补;2009年至2011年,对城阳城南部城墙进行了发掘,发掘结果显示城南部向东延伸城墙的修建年代不晚于战国早期;从辉县共城的南城墙发掘结果来看,初步推测此城墙的始筑年代应为战国中晚期。其他城址多根据城内发现的遗迹遗物推断出在东周时期多有沿用,但是始建年代、不同城垣之间的性质尚不清晰。
图片
 

二、单重城垣

单重城垣是东周时期城址的常见形制,统计的47座城址中有36座为单重城垣,其中较为规整的长方形或近似长方形的城址有32座,受到地形影响呈现出不规则形的城址有4座。根据原有的文物普查资料,尚未统计的100余座城址,也多为长方形的单重城垣布局。
长方形或近似长方形的城址:
长方形城址是东周时期的常见城址,有32座开展过考古工作,这些城址的调查和发掘工作大多在20世纪,近些年,仅宋国故城进行了考古发掘工作,本文进行简要介绍。
图片

宋国故城平面图

(图片来源:城市考古与保护微信公众号:《殷商之源、汉唐腰膂——商丘近年来城市考古与保护概述》)

 

 
宋国故城:宋国故城在20世纪进行过勘察和钻探,近些年,宋国故城遗址考古队对遗址进行持续性考古发掘,在宋国故城南墙附近发掘近2000平方米,基本理清了宋国故城的历史沿革问题。宋国故城南墙城墙始建年代或不晚于西周时期,以东周时期城墙为主体,保存规模大,汉代利用原旧城,在城内外均有多次大规模补修。唐代早期废弃,唐天宝十二年(753)之后在汉代睢阳城内增建睢阳故城西城墙,利用东南角改建小城,两宋时期依然沿用并多次修补。
 
不规则形城址:
图片
 
河南地区目前发现的平面呈不规则形的单重城垣城址仅有4座,分别是淇县古城、滑国故城、刘国故城和北舞渡古城,均受周边地形影响,呈现出不规则形状
单重城垣的城址中,对宋国故城等5座城址的城墙始建年代开展过较为详细的考古工作,这5座城址均始筑于春秋时期,其他城址主要依靠城内的遗迹遗物判断沿用时代。宋国故城南墙城墙始建年代或不晚于西周时期,以东周时期城墙为主体,保存规模最大,汉代利用原旧城,在城内外均有多次大规模补修;轵国故城始筑于春秋,之后历代沿用至唐代;淇县古城营建不早于春秋中期,可能出现于春秋晚期,兴盛于春秋晚期—战国早期,战国中晚期应有城墙多次修筑;吴房故城始筑于春秋中期,东周以后历代沿用;滑国故城下层夯土墙为春秋时遗存,上层夯土墙为汉代所造。
图片
 
从面积上看,单城垣的城址中面积超过1000万平方米的城址有1座,为宋国故城;面积在500万至1000万平方米的城址有2座,分别是濮阳高城和北舞渡古城;面积在100万至500万平方米的城址有14座,100万平方米以下的城址数量最多,有19座。
 

文原标题《中原地区东周城址考古的初步研究》,有删节,载于《文物天地》2025年第11期,参考文献从略,下载全文请登录中国知网首页-出版物检索-文物天地

作者单位:河南省文物考古研究院(城市考古与保护国家文物局重点科研基地

 

E-mail

投/稿/邮/箱

 

wwtd@vip.sina.com

 

 

编辑:严小稚 贾亚楠(实习)

审核:朱 威

图片
图片

三亚市博物馆·公益 三亚市西河西路2号文体大楼三楼 0898-88666125
Copyright ©三亚市博物馆·公益 琼ICP备19004074号-1
  • 三亚旅文